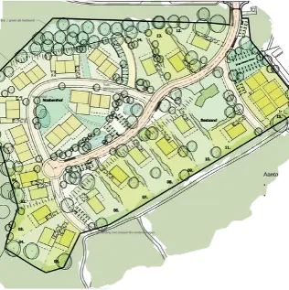
Aan de rand van het  karakteristieke dorp Rijssen op een open plek van een voormalige camping in het bos verrijzen 63 nieuwbouwwoningen.

 

Het woonprogramma betreft 15 vrijstaande kavels, 8 middenkoop-, 16 sociale koop- en 24 huurwoningen die modern wooncomfort combineren met de rust van het groen en bos. In samenwerking met de gemeente Rijzen, Lemson Architecten, VAB Architecten en Haase bouw uit Rijssen zal hier, op de plek van voormalige camping De Goolne Ket’n, nieuwbouw plaats gaan vinden. In samenwerking met de buurt en het Noabershof en komt hier een prachtige invulling met veel oog voor kwaliteit.

 

Gepland:

Projectinformatie

Status: Voorbereidingen procedure

Type project: Woningbouw (63)

Gemeente: Rijssen

Provincie: Overijssel

Architekt: Lemson Architecten/ VAB Architecten

Aannemer: Haase bouw bv

Projectsite: www.Goolneketn.nl